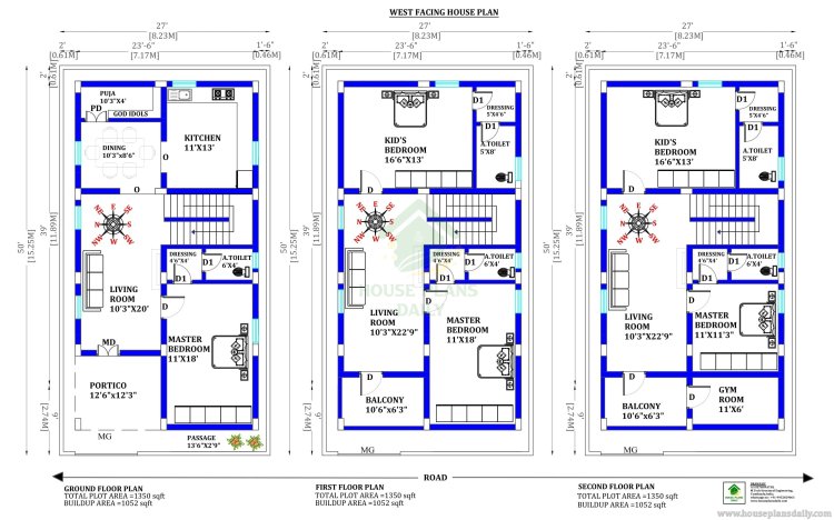
99 House Floor Plans with Modern and Vastu Design Ideas for Every Family
99 house floor plans with modern and vastu design ideas for every family article is given. The 99 House floor plans prioritize efficient, open layouts that maximize usable space on compact footprints.
99 House Floor Plans with Modern and Vastu Design Ideas for Every Family
99 house floor plans with modern & vastu design ideas for every family article is given. The 99 House floor plans prioritize efficient, open layouts that maximize usable space on compact footprints. They often blend flexible dining zones, island kitchens, and smooth indoor–outdoor connections to expand living areas.
#99housefloorplan #modernvastufloorplan99, #99vastucomplanthomes, #vastulayoutwithdimensions, #99besthomevastudesigns, #vastufriendlyfloorplan9 #vastufloorplanfor1200sqfthome, #vastudesignideasforhomes, #bestvastufloorplanforprosperity #besthomeideas #vastufloorplan, #vastuhouseplan, #houseplansaspervastushastra, #vastucomplanthomedesign, #eastfacingvastufloorplan, #houseplanningdesign #modernhomelayout #floorplanconcepts #duplexhouseideas #smallhouseblueprint #familyhousedesign #3bhkluxuryhome #2bhkfloorplan #indianvastuideas #homedesignmap #budgethouseideas
Browse through thousands of floor plans and house designs at www.houseplansdaily.com and www.houseplans.world. We provide creative and functional layouts to suit every requirement. For personalized home plans designed exclusively for you, contact us at +91-9952029063 or WhatsApp at https://wa.me/919952029063.
#compacthomedesign #99houseconcepts #openlivingfloorplan #ecoarchitectureplan #kitchenwithvastu #homemapguide #affordablefloorideas #dreamhomeconcept #3roomhomeplan #tinyhouseblueprints #interiorvastulayout #2roomfloorplan #houseconstructionguide #residentialplandesign #spaciousfloorlayout #urbanhomefloorplan #modernbungalowdesign #cottagefloorideas
#homebuildingideas #creativehouseconcepts #dreamfloorplan #bestfamilyhomeideas #duplexplanguide #triplexhomedesign #vastuluxuryfloorplan, #vastusimplehouselayout, #vastuplanwithcarparking, #vastucompliant900sqfthouse, #houseinteriorideas #groundfloorlayoutideas #doublefloorhomeplan #newhomeconcepts #frontdesignhouse #cornerhomeideas
#triplexlayoutideas #groundfloorhouseplan #firstfloorhomeideas #simplehomemap #cornerplotfloorplan #frontfacinghomeideas #housemapblueprint #modernapartmentlayout #rowhouselayout #townhouseideas #gardenhomedesign #balconyfloorlayout #pujaroomdesignvastu #studyroomhouseplan #hallandkitchenlayout #lowbudgetfloorplan #dreamhousemap #indiandreamhome
#vastuplanforplotdesign, #vastuplanforcornerhouse, #vastuplanforsmallplots, #vastuplanfornarrowplots, #vastuplanforfarmhouse, #vastuhouseplanforvilla, #vastuplanforduplexapartment, #compact2bhklayout #luxuryhomeconcepts #homeplanguide2025 #vastufriendlyhome #99modernfloorideas #homelayoutblueprints #homemapdesignideas #smallspacelayout #indianstylehouseplan
#tinyhomelayout #eco2bhkdesign #luxury3bhkconcept #interiorroomplan #familydreamhome #bestfloorlayoutideas #topmodernfloorplans #homeideasguide #interiorhouseblueprints #affordablehousemap #simpleinteriorlayout #spaciousfamilyhome #indianhomelayout #northfacingvastuhouseplan, #westfacingvastufloorplan, #southfacingvastuhomedesign, #vastuplanwithdimensions, #vastushastrahousedesign
#vastumapforresidentialhouse, #vastufloorplanwithpujaroom, #vastukitchenplacementplan, #vastulivingroomlayout, #vastubedroomfloorplan, #vastuchildrenroomdesign, #vastumasterbedroomplan, #vastulayoutfor2bhkhome, #vastulayoutfor3bhkhouse, #vastufloorplanforduplexhouse, #vastudesignforapartments, #vastufriendlyfloorplan, #vastushastrahomemap, #vastubasedfloorlayout, #vastudesignforbungalow, #newfloorplanideas #moderninteriorplan
#vastuhomeblueprint, #vastulayoutforsmallhouse, #budgetfriendlyfloorplans #trendingmodernhomes #homemapwithvastu #kitcheninteriorplan #livingroomlayoutideas #newhouseelevation #besthouseideas2025 #housemapconcepts #modernfloorblueprints #compacthomeblueprint #luxuryvillaarchitecture #familyhouseblueprint #eco3bhkplan #tinyhomedesignmap #housemaplayoutdesign #urbanresidentialplan #homebuildingmap #vastudesignforgroundfloor, #vastudesignforfirstfloor, #vastuplanfortriplexhouse, #vastucommercialfloorplan
#homelayouttrends #trendinghouseplans2025 #houseelevationlayout #plotdesignplan #residentialconstructionmap #floorplaninspiration #2bhkmodernideas #vastuplanforofficespace, #vastuplanforshoplayout, #vastulayoutformodernhouse, #vastutraditionalhomedesign, #3bhklayoutdesign #familyfriendlyfloorplan #luxuryvillaideas #houseideas2025 #affordable3bhk #minimalhomeideas
#urbanvastudesign #indiansmallhouseplan #latesthomeblueprints #customizedhomeideas #lowcostfloorideas #modernkitchenplan #familyfloorconcept #houseplanningindia #homeblueprint2025 #simplefloorlayout #indoorvastudesign #spacioushomelayout #ecoarchitecturefloorplan #affordablemodernhouse #budget2bhkplan #besthomeblueprint #openconceptliving #vastuhomelayoutwithdimensions
Download & Install Our App Today – Fast, Free, and Easy!
House Plans Daily Store App
https://play.google.com/store/apps/details?id=com.hpd.houseplanssdaily
House Designs & Plans Blog App
https://play.google.com/store/apps/details?id=com.hpd.housedesignsplans
House plans & Designs Wallpaper App
https://play.google.com/store/apps/details?id=com.hpd.houseplansdesigns
Check These Articles for More Ideas
- House Plan as per Vastu Shastra
- East Face House Plans with Vastu | East Face House Plan Vastu
- Top 30 West Facing House Plans As Per Vastu | House Plans Design
- Plan for North Facing House As Per Vastu | House Design with Car Parking
- Plan for Duplex House in 40x50 Site | North Facing Duplex House Plan
- West Facing Vastu Plan | 3bhk West Facing House Plan | 3bhk house plan duplex
- Top 36 east facing house plan with vastu
- North Facing Vastu House Plan | 3BHK Homes
- East Facing 3bhk House Vastu Plan | New Home Plan Designs
- Vastu for Home North Facing | House Design with Car Parking
- Top 36 east facing house plan with vastu
- Plan for North Facing House As Per Vastu | Single Floor House Designs
- 3 Bedroom House Plans Low Budget | South Road East Facing House
- East Facing Duplex House Vastu Plan | 20x35 Ghar Ka Naksha
- 2 bhk House Plans with Vastu East Facing | Simple House Design 600 Sqft
- Car Parking House Design | 2 bhk House Plans with Vastu East Facing
Note:
House plans and elevation designs related to these keywords like vastu house design 99, best vastu layout plans, 99 vastu shastra house plans, dream house floor plan, modern 2bhk layout, contemporary 3bhk house design, compact home floor plan, east facing home layout, vastu shastra home design, stylish luxury house plan, open concept floor plan, budget-friendly house plan, traditional Indian home plan, creative small house design, urban duplex layout, simple family home plan, 900 sqft modern home, functional 3 room floor plan, and others can be obtained from this website.

